• Home
  • Who we are
    About us Our Team Vision and mission
  • Services
  • Sectors (current)
  • Our Work
    Projects Sample Drawings Site Photos
  • Contact Us
  •   044-44857100

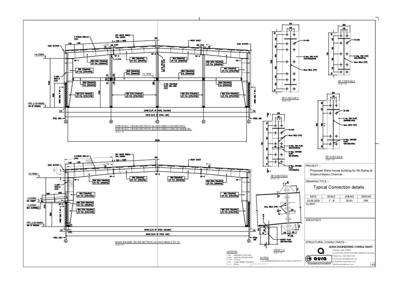
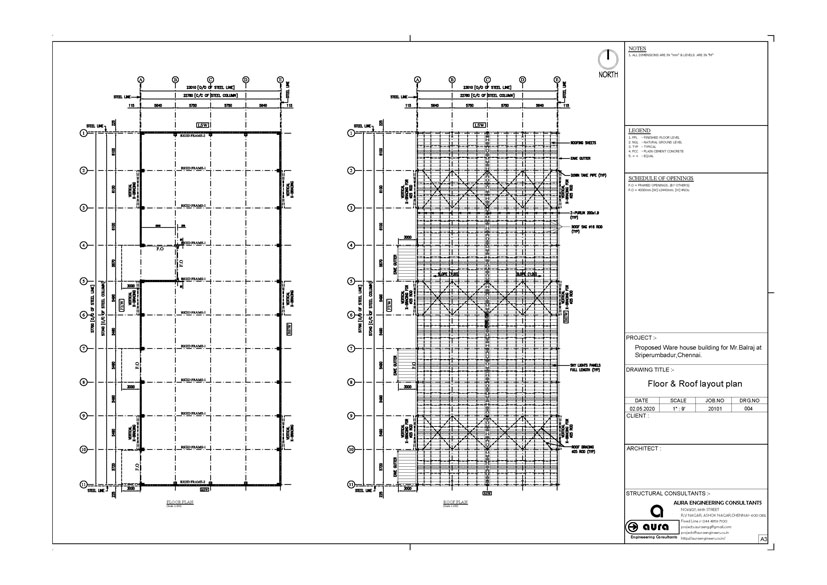
Truss 23m span using (PEB) pre-engineered building

Previous Next

Back to top

© 2019 Aura Engineers. Powered by SkyDesigns